受付中
今回は、大分県佐伯市上浦大字浅海井浦にある0円物件です。
佐伯市の中心地と、津久見市の中心地の間に位置し、どちらも車で20分程度で行くことのできる場所です。
また、近くには浪太港があり、釣り人がよく訪れる釣りスポットでもあります。
港のそばには「レンタルボート大分」さんがあり、本格的な釣りも楽しむことができます。
そんな立地にある0円物件を見ていきましょう。
国道217号線から迷路のような細い路地に入り、2,3分歩けば物件の目の前にたどり着きます。

家の前まで車が入ることはできませんが、
近くに駐車場がありましたので、契約すれば近くまで車で入ることができます。
2024年12月に剪定を行い、最新の写真も掲載いたします。



石段を登ると、今回の物件と対面できます。
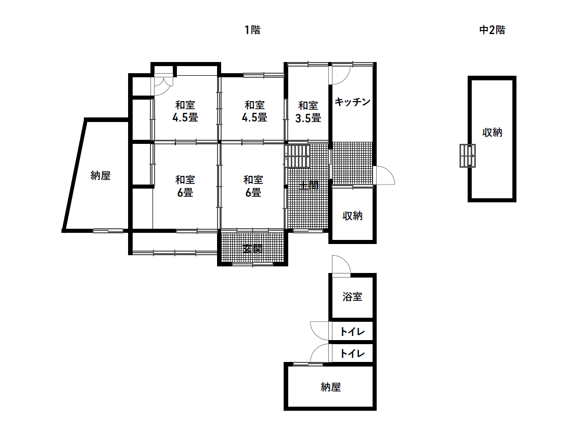
間取りは、こちら。

お風呂とトイレは離れにあります。
また、ロフト収納もあります。
では、物件の外観・内観を詳しく見ていきましょう。
今回の物件は、360度カメラで撮影したため、床・天井など細かな部分まで見ることができます。
画面中の矢印ボタンを押すと、矢印方向のシーンへ移動することができます。
クリック・スクロールで見たい場所を見ることができます。
※下図は、360度写真との対応表です。
位置の判別のために参考にされてください。

固定資産税納税通知を見ると、本宅は昭和32年築ですが、
トイレ・風呂のある離れはなんと明治元年築となっています。
なんとも歴史を感じさせますね。



また、玄関付近には蜂の巣がありますので、贈与を受けた後は駆除からスタートになりそうです。
そのほか、瓦の一部損壊や、壁が剥がれていたりする部分もありますので、
修繕はそこそこ必要になるかと思います。


では、中を詳しく見ていきます。
まずは、4部屋の和室から。
※下図は、360度写真との対応表です。
位置の判別のために参考にされてください。



畳は一部腐食している部分があります。

腐食している部分の真上です。

0円物件の中では、残置物は若干少な目の印象です。

続いて、部屋の内部を見ていきます。
※下図は、360度写真との対応表です。
位置の判別のために参考にされてください。

勝手口から入るとこんな感じです。

ロフト(中2階)へと登る階段は、和室から登ることができます。

キッチンには天井の破損がありますので、大幅な改修が必要でしょう。


現在、登記の名義人は一人にまとまっております。
現況有姿、公簿取引、境界非明示での贈与となります。
また本物件は農地や山林も一緒にご案内可能なので、ご興味がある人はぜひご連絡くださいませ。
農地については、佐伯市の農業委員会に取得要件を確認してください。
〇佐伯市農業委員会
電話番号:0972-22-4023
ご興味ありましたら、是非ご応募ください。
【物件概要】
・物件No.S-22-00176_1
・所在地 大分県佐伯市上浦大字浅海井浦
※無断での内見などトラブル防止のため、番地を含めた所在地は登録後にお伝えとなります。
・アクセス JR九州 日豊本線「浅海井」まで徒歩27分(約2.1Km)
佐伯市コミュニティバス上浦線「浪太」まで徒歩約4分(約260m)
・土地面積 207.30㎡(62.70坪)公簿
・登記地目 宅地
・課税地目 宅地
・建物構造 木造
・延床面積 93.72㎡(28.35坪)公簿
・建築年 昭和32年(築68年)
・土地権利 所有権
・都市計画 都市計画区域外
・用途地域 -
・建蔽率 -
・容積率 -
・前面道路 -
・電気 あり
・ガス プロパン
・上水道 あり
・下水道 汲み取り
・その他 土砂災害警戒区域内(急傾斜)、山林と農地のご案内も可能
※都市計画や建築に関する詳細は登録後、自治体担当課にて直接確認してください。
【備 考】
・土地評価額:960,835円
・建物評価額:205,870円
・固定資産税額:2,800円
※令和4年度納税通知書より
また、取得後も、活用用途に応じて各種費用が発生しますので、活用計画や資金計画を立てた上でお申込ください。